REQUEST A TOUR If you would like to see this home without being there in person, select the "Virtual Tour" option and your agent will contact you to discuss available opportunities.
In-PersonVirtual Tour

Listed by Dunes Commercial Properties
$1,750,000
Est. payment /mo
9,147 Sqft Lot
UPDATED:
Key Details
Property Type Vacant Land
Listing Status Active
Purchase Type For Sale
MLS Listing ID 25031828
HOA Y/N No
Lot Size 9,147 Sqft
Acres 0.21
Property Description
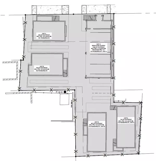
*** Permits are approved and ready to be pulled ***An exceptional permit-ready development opportunity in the heart of Charleston's Westside. 179-183 Fishburne Street is approved for the construction of five new homes, offering a rare chance to deliver a boutique residential project downtown without the long entitlement timeline. The permits are approved and ready to be pulled with the city of Charleston, allowing for a faster path to construction.The development plan includes the conversion of an existing church into a single-family home, creating a distinctive architectural centerpiece for the site. A small structure behind the church is approved for demolition, opening the parcel for efficient site circulation and maximizing buildable area. The project also provides 10 off-strepermits are approved and ready to be pulled
An exceptional permit-ready development opportunity in the heart of Charleston's Westside. 179-183 Fishburne Street is approved for the construction of five new homes, offering a rare chance to deliver a boutique residential project downtown without the long entitlement timeline. The permits are approved and ready to be pulled with the city of Charleston, allowing for a faster path to construction.
The development plan includes the conversion of an existing church into a single-family home, creating a distinctive architectural centerpiece for the site. A small structure behind the church is approved for demolition, opening the parcel for efficient site circulation and maximizing buildable area. The project also provides 10 off-street parking spaces, a significant advantage in this highly walkable downtown neighborhood.
This property also qualifies for the South Carolina Abandoned Building Tax Credit, providing the buyer with substantial potential tax savings and enhancing the overall feasibility and return of the redevelopment.
Ideally located within Charleston's thriving Westside district, the property benefits from immediate proximity to the WestEdge Innovation District, Harmon Field, The Citadel, Hampton Park, and the peninsula's expanding medical district. Residents will enjoy close access to local favorites such as Daps Breakfast & Imbibe, Rodney Scott's BBQ, and the shops and cafes along Spring and Fishburne Streets. Numerous parks, playgrounds, athletic fields, and walking paths sit just steps away, contributing to the strong lifestyle appeal of the area.
With approved plans, strong neighborhood momentum, meaningful incentives, and lasting demand for new residential product downtown, this property stands out as a rare and highly desirable infill development opportunity.
An exceptional permit-ready development opportunity in the heart of Charleston's Westside. 179-183 Fishburne Street is approved for the construction of five new homes, offering a rare chance to deliver a boutique residential project downtown without the long entitlement timeline. The permits are approved and ready to be pulled with the city of Charleston, allowing for a faster path to construction.
The development plan includes the conversion of an existing church into a single-family home, creating a distinctive architectural centerpiece for the site. A small structure behind the church is approved for demolition, opening the parcel for efficient site circulation and maximizing buildable area. The project also provides 10 off-street parking spaces, a significant advantage in this highly walkable downtown neighborhood.
This property also qualifies for the South Carolina Abandoned Building Tax Credit, providing the buyer with substantial potential tax savings and enhancing the overall feasibility and return of the redevelopment.
Ideally located within Charleston's thriving Westside district, the property benefits from immediate proximity to the WestEdge Innovation District, Harmon Field, The Citadel, Hampton Park, and the peninsula's expanding medical district. Residents will enjoy close access to local favorites such as Daps Breakfast & Imbibe, Rodney Scott's BBQ, and the shops and cafes along Spring and Fishburne Streets. Numerous parks, playgrounds, athletic fields, and walking paths sit just steps away, contributing to the strong lifestyle appeal of the area.
With approved plans, strong neighborhood momentum, meaningful incentives, and lasting demand for new residential product downtown, this property stands out as a rare and highly desirable infill development opportunity.
Location
State SC
County Charleston
Area 52 - Peninsula Charleston Outside Of Crosstown
Schools
Elementary Schools James Simons
Middle Schools Simmons Pinckney
High Schools Burke
Others
Acceptable Financing Cash, Conventional
Listing Terms Cash, Conventional
Financing Cash,Conventional
Read Less Info


